VILLA CON CAMPO DA CALCETTO

In vendita
Acquaviva delle Fonti
160.000 €
Villa
Categoria
280
m2
6
Locali
Descrizione
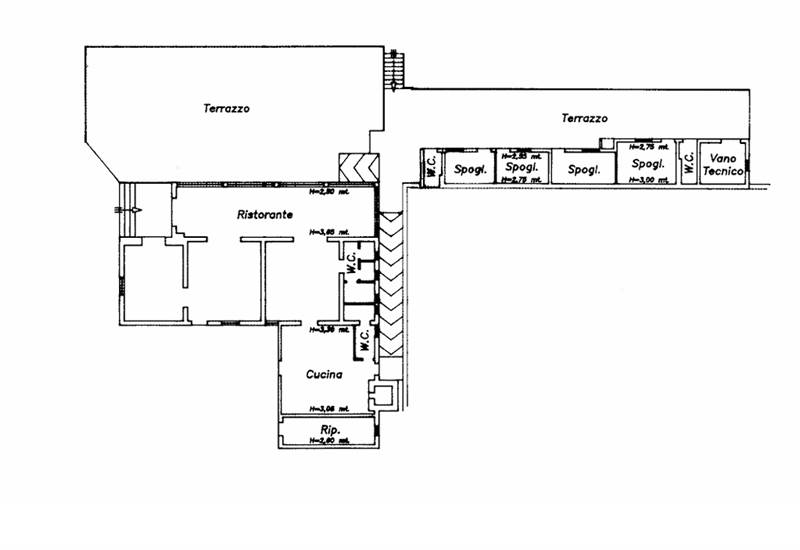
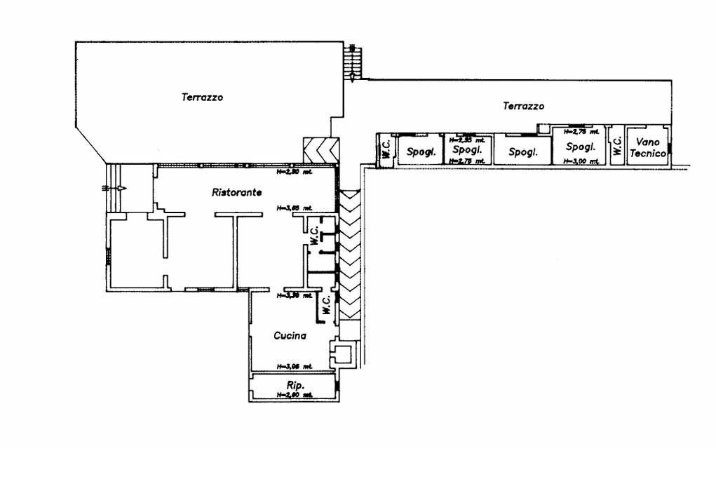
Ad un solo kilometro di distanza dal paese, proponiamo in vendita una villa singola con ampi spazi esterni. La proprietà è attualmente destinata ad attività di ristorazione ed è così composta : ingresso dall'ampio patio esterno direttamente nella zona reception/cassa, accesso ad una comoda sala con finestre sul giardino, altre tre sale più piccole, zona servizi igienici con antibagno, retrostante zona cucina con accesso anche dall'esterno e bagno di servizio per il personale. La proprietà è circondata da una superficie scoperta di oltre 5600 mq, di cui parte destinata a zona parcheggio, parte a campo da calcetto e parte a terreno/giardino. L'immobile è da personalizzare e ammodernare ma ha un grosso potenziale, d'altronde chi potrebbe rinunciare a tanta tranquillità e ad un bel campo da calcio tutto per sè direttamente a casa?

Per maggiori info e visite contattaci!
Caratteristiche principali
Codice:
V000081
Città:
Acquaviva delle Fonti
Categoria:
Villa
Locali:
6
Mq:
280
mq Terrazzo:
73,6
Piano:
Rialzato
Classe energetica:
G
Stato Immobile:
Discrete Condizioni
Posizione:
Campagna
Panorama:
Vista Aperta
Lati Liberi:
4
Giardino:
Privato
Pavim. Giorno:
Cotto
Planimetrie
Cookie preference